BINDT chalet I ponúka pokoj, priestor a súkromie pre 8 hostí, ktorí chcú zažiť Slovenský raj komfortne, bez kompromisov a bez rušenia okolia. Nachádza sa na samostatnom pozemku s rozlohou 600 m², obklopený zeleňou a lesom.
Dvojpodlažný chalet s rozlohou 100 m² je navrhnutý tak, aby poskytoval dostatok priestoru na spoločné chvíle aj nerušený oddych. Na prízemí sa
… zobraziť viacBINDT chalet I ponúka pokoj, priestor a súkromie pre 8 hostí, ktorí chcú zažiť Slovenský raj komfortne, bez kompromisov a bez rušenia okolia. Nachádza sa na samostatnom pozemku s rozlohou 600 m², obklopený zeleňou a lesom.
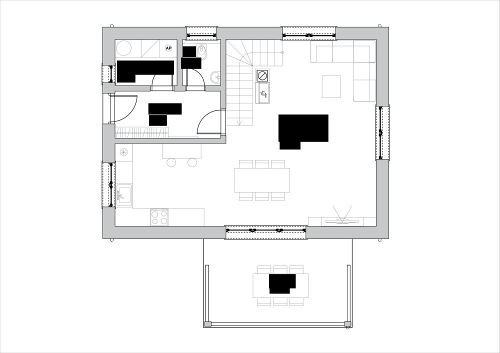
Dvojpodlažný chalet s rozlohou 100 m² je navrhnutý tak, aby poskytoval dostatok priestoru na spoločné chvíle aj nerušený oddych. Na prízemí sa nachádza priestranná obývacia izba s pieckou, prepojená s jedálenskou časťou a plne vybavenou modernou kuchyňou. Samozrejmosťou je samostatné WC a technická miestnosť s práčkou.
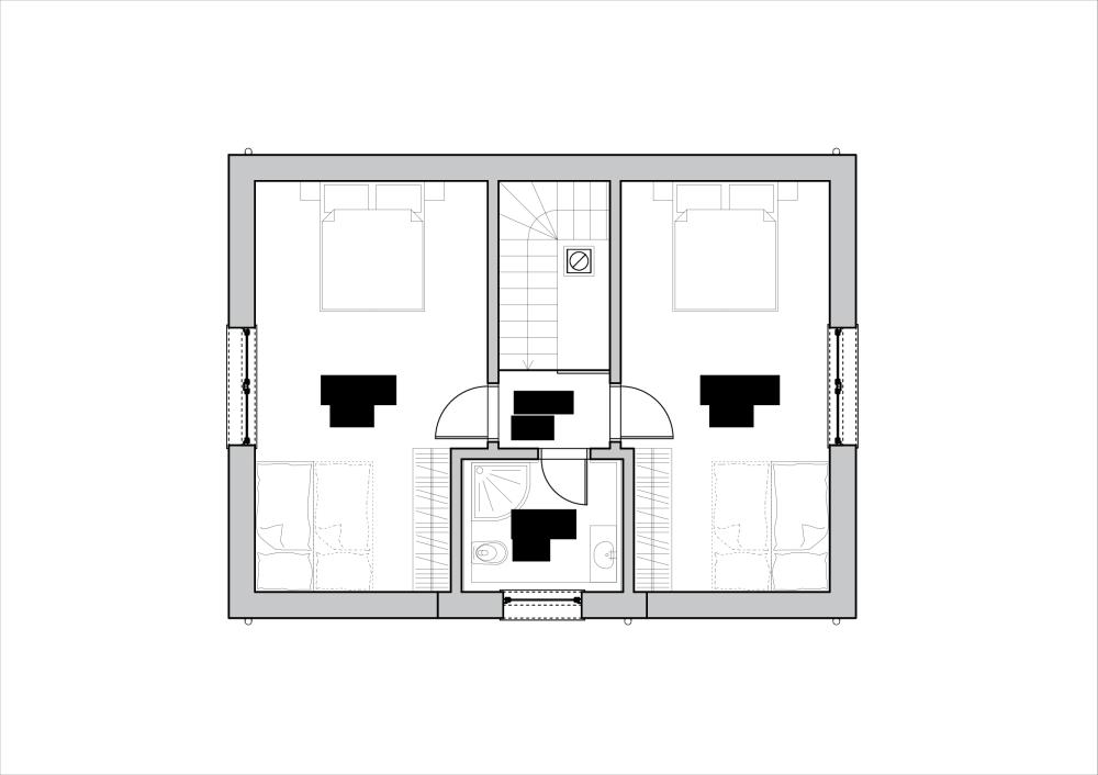
Na poschodí sú situované dve veľké samostatné spálne, každá s manželskou posteľou, jednolôžkom a výsuvným lôžkom, ako aj kúpeľňa s WC – ideálne riešenie pre dve rodiny alebo dva páry, ktoré chcú mať vlastný komfort a súkromie.
K chaletu patrí krytá terasa s výhľadom do záhrady a lesa a miesto na opekanie, ktoré prirodzene láka k večernému posedeniu pri ohni. Skutočným vrcholom oddychu je vonkajšia panoramatická fínska sauna a vykurovaná kúpacia kaďa, kde si vychutnáte ticho, teplo a pohľad na nočnú oblohu.